Nhà vườn mái Thái - Anh Tứ, Ninh Bình. Mẫu nhà truyền thống nhưng chưa bao giờ lỗi thời
Thiết kế, kiến trúc ngày càng phát triển nhưng dù thay đổi đến đâu thì những giá trị truyền thống vẫn là những nét đẹp tuyệt vời và ăn sâu vào tiềm thức của con người Việt. Đó là những nếp nhà mái thái lợp ngói đỏ.
Cùng khám phá mẫu nhà vườn 1 tầng của chủ nhân anh Tứ được Việt Home hỗ trợ thiết kế trong bài viết dưới đây.
1. Phối cảnh mặt tiền
Không cầu kỳ hay hoa mỹ, anh Tứ mong muốn xây dựng 1 căn nhà nhỏ, thoáng và phù hợp với không gian ở quê nhà. Thấu hiểu được điều này, kiến trúc sư đã tư vấn anh làm nhà vườn mái thái với phần ngói đỏ. Từ lâu, ngói đỏ đã trở thành biểu tượng ở làng quê Việt. Bởi vậy, anh Tứ vô cùng nhất trí với đề xuất này.
Khi lên thiết kế, mẫu nhà được tối ưu nhất để đảm bảo mẫu nhà đẹp nhưng không bị lỗi thời. Vậy nên, tất cả các cửa sổ thay vì được làm từ gỗ thì chuyển sang là nhôm kính. Điều này không chỉ giúp căn nhà mang vẻ đẹp hiện đại mà còn giúp đón sáng tốt, tiết kiệm kinh phí cho gia chủ.

Mái thái chính là sự lựa chọn hoàn hảo cho thời tiết nắng nóng mưa nhiều tại nước ta. Hệ mái giúp tổng thể căn nhà mềm majim thoát nước và chống nóng hiệu quả.
Thiết kế bồn hoa phía trước là điểm được yêu thích để con gái hoặc vợ anh có thể trồng hoa, mang thêm không gian xanh, thiên nhiên vào nhà.

2. Bố trí công năng
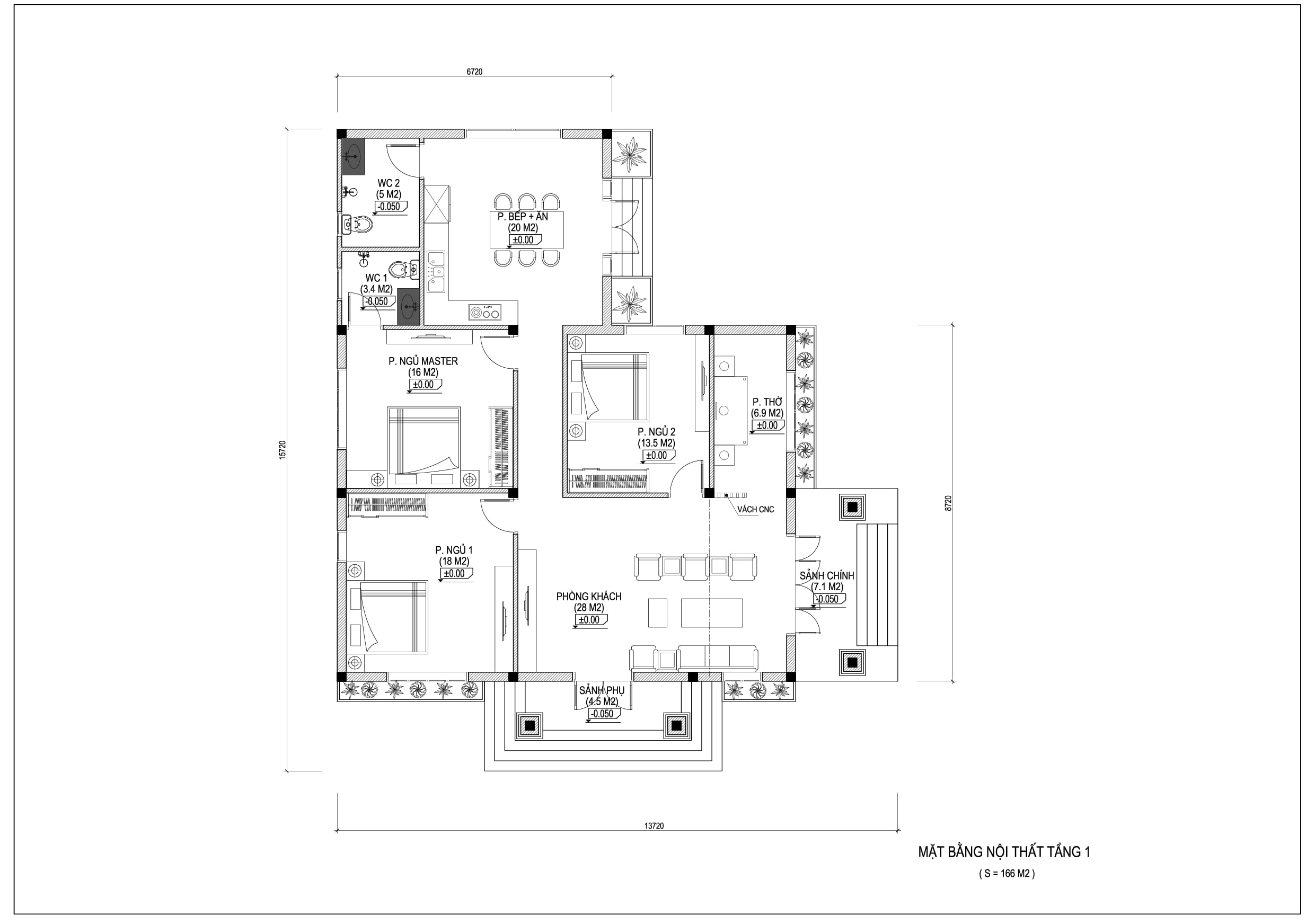
Phòng khách + Phòng thờ + Bếp + 3 Phòng ngủ + 2 WC
Từ sảnh chính bước vào là phòng khách rộng 28 m2. Diện tích phòng khách khá rộng, được bố trí gọn gàng là không gian lý tưởng để tiếp đãi khách khứa, bạn bè.
Bên trái phòng khách được bố trí thêm 1 sảnh phụ, là lối đi thuận tiện từ nhà ra khoảng sân vườn. Đồng thời, sảnh phụ cũng giúp ngôi nhà thông thoáng hơn.
Phòng thờ được bố trí cùng hướng với phòng khách, đây là hướng đẹp được kiến trúc sư bố trí theo cung tuổi của anh Tứ. Phòng thờ rộng gần 7 m2, được thiết kế riêng biệt mang là sự linh thiêng, yên tĩnh.

Thiết kế có 3 phòng, phù hợp với nhu cầu sử dụng của gia đình trong đó có 1 phòng master khép kín là phòng của vợ chồng anh. Bếp được thiết kế đẩy ra cuối bên phải nhà để đảm bảo tránh mùi thức ăn khi nấu nướng.
Nếu bạn đang tìm kiếm ý tưởng cho căn nhà tương lai. Liên hệ ngay Việt Home để được chúng tôi tư vấn mẫu nhà phù hợp nhất.
