Say đắm trước căn biệt thự nhà vườn với vẻ đẹp tự nhiên - Chủ đầu tư: Anh Giang, Thái Nguyên
Mẫu nhà vườn 1 tầng đẹp đang là lựa chọn ưu tiên hàng đầu của những gia đình có khuôn viên đất rộng. Các mẫu nhà 1 tầng luôn mang đến cảm giác gần gũi với thiên nhiên, xua tan mệt mỏi và tốt cho sức khỏe của các thành viên trong gia đình. Bên cạnh đó, với không gian nội thất tiện nghi, các mẫu nhà này sẽ tạo nên một không gian sống thoải mái nhất cho từng thành viên trong gia đình.
1. Phối cảnh 3D mặt tiền
- Chủ đầu tư: Anh Giang
- Địa điểm xây dựng: Phú Bình, Thái Nguyên
- Tên công trình: Nhà vườn 1 tầng mái nhật.
- Diện tích: 15x11,77M
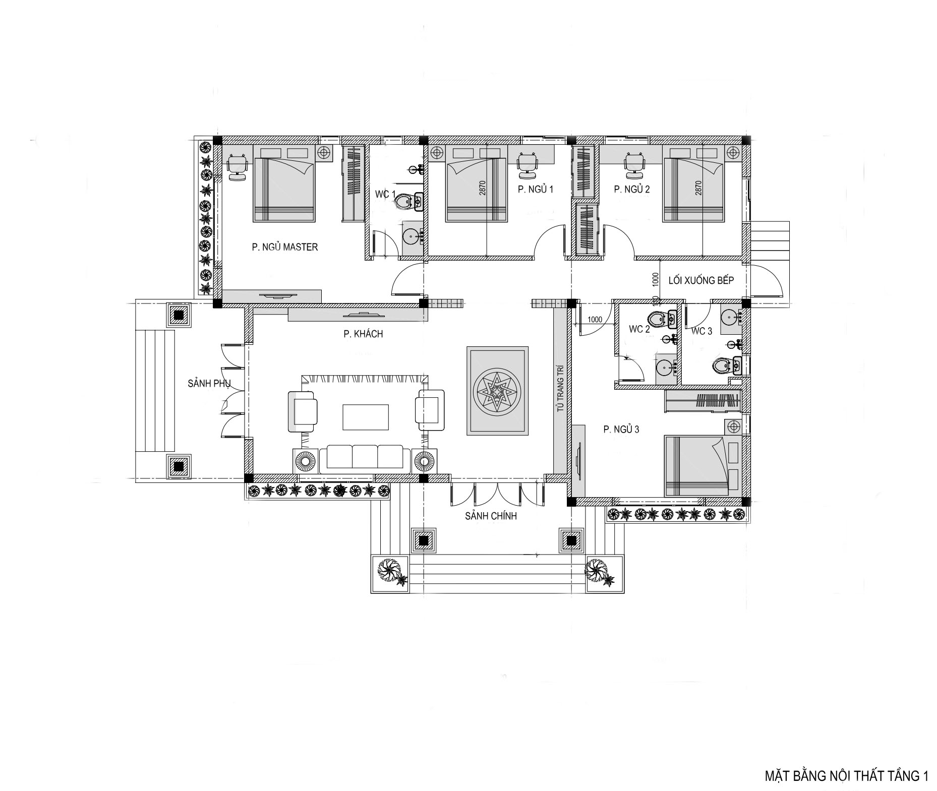
- Công năng sử dụng: Phòng khách + 1 Phòng ngủ master + 1 Phòng ngủ khép kín + 2 Phòng ngủ thường + 1WC

Điểm nhấn của ngôi nhà là bộ cửa gỗ chắc chắn bề thế cân bằng bởi hệ thống cửa sổ nhôm kính, lấy sáng cho không gian bên trong nhà. Giúp cho mọi sinh hoạt hằng ngày trở nên dễ dàng, không trí trong lành nhằm cải thiện chất lượng cuộc sống.
Hệ thống cửa kính còn mang đến tầm view đẹp, tạo cảm giác gần gũi với thiên nhiên và cây xanh bên ngoài. Không gian sân vườn của biệt thự được chú trọng thiết kế, với diện tích sinh hoạt lên đến 171m2 sân vườn vẫn rất thoáng và rộng.

Ngoài công trình kiến trúc chính thì cảnh quan chính là những gì chủ nhà mong đợi nhất về một cuộc sống yên bình và tươi đẹp. Các cây cảnh, cây bon sai, hòn non bộ, giàn hoa cây cảnh có những loại thực vật phong phú về chủng loại, màu sắc.
Mặt tiền chính cũng như mặt tiền phụ của công trình đều được nhấn mạnh và điểm tô với những đường phá cách độc đáo. Thêm vào đó, sự kết hợp màu sắc đơn giản như trắng và nâu những vẫn tạo nên được sứt hút riêng cho mẫu nhà vườn 1 tầng này.
2. Hình ảnh bố trí công năng

Hãy liên hệ với chúng tôi để được tham khảo thêm nhiều mẫu nhà nữa nhé!!!
.
CÔNG TY CP KIẾN TRÚC XÂY DỰNG VIỆT HOME
Văn phòng Hà Nội: Tòa nhà MHDI, 89 Lê Đức Thọ, Nam Từ Liêm , Hà Nội
Hotline: 0912 301 185 / 0986 823 185 / 0396 301 185
Văn phòng Thái Nguyên: Tòa FFC Tower, 64 Hoàng Văn Thụ, tp Thái Nguyên
Hotline: 0961 301 185
Văn phòng Hải Phòng: Tòa Thành Đạt 1, số 3 Lê Thánh Tông, Ngô Quyền, Hải Phòng
Hotline: 0916 429 185
