Mẫu biệt thự mái thái 1 tầng nhà anh Định - Thái Nguyên
Mẫu nhà vườn 1 tầng đẹp này được chúng tôi thiết kế cho gia chủ tại tỉnh Thái Nguyên, gia chủ đã ưng ý với phương án thiết kế này và chúng tôi cũng rất nóng lòng gửi tới quý độc giả mẫu thiết kế này để các bạn cùng tham khảo. Phải nói là đây cũng là một trong các mẫu thiết kế biệt thự vườn 1 tầng mà tôi khá ưng ý và gia chủ sẽ thi công mẫu nhà này theo đúng thiết kế mà chúng tôi đã làm. Chúng tôi sẽ gửi tới các bạn hình ảnh để các bạn cùng tham khảo nhé.
Phối cảnh biệt thự mái thái 1 tầng nhà anh Định - Thái Nguyên

Mẫu nhà vườn 1 tầng đẹp này được thiết kế trên lô đất rất rộng và diện tích xây dựng nhà là 150m2 và diện tích sảnh là 23m2 và dự kiến rằng chi phí thi công của căn nhà này là 700-800 triệu là có thể hoàn thiện được. Tông màu chủ đạo trong mẫu thiết kế này chính là tông màu kem, kết hợp với tông màu nâu sơn chấm phá và trang trí các cửa chính, cửa sổ, các đầu hồi, mái chữ A của căn nhà. Ngoài ra các vật liệu gạch và đá ốp tường trang trí là không thể thiếu cho một mẫu nhà đẹp.
Nhìn chung với mẫu thiết kế biệt thự 1 tầng này chúng ta sẽ phải đầu tư khá nhiều công thiết kế cũng như khá nhiều chi phí nhân công xây dựng cho căn nhà này. Và người thiết kế cũng sẽ phải mất nhiều thời gian hơn để thiết kế được căn nhà này và gửi cho các bạn cùng tham khảo. Với tôi có lẽ đây cũng sẽ là mơ ước về một mẫu nhà vườn 1 tầng đẹp.
Có lẽ nhiều người sẽ thích nhà tầng nhưng thực sự nếu các bạn sinh hoạt để thuận tiện nhất vẫn là nhà 1 tầng hoặc chung cư chúng ta sẽ không phải leo trèo mà các thành viên trong nhà sẽ được gần gũi nhau hơn. Và các bạn ở vùng quê thì có thể thực hiện được mơ ước đó nhưng với chúng tôi ở các thành phố lớn đất trật người đông thì có lẽ mơ ước đó thật quá khó.

Về phần thiết kế sân vườn trong mẫu thiết kế này chúng tôi cũng chỉ làm sơ bộ cho gia chủ cùng tham khảo, nếu gia chủ mà có điều kiện đầu tư như thiết kế này thì tốt quá. Vì mẫu nhà vườn 1 tầng đẹp này gia chủ chỉ yêu cầu thiết kế nhà và không thiết kế sân vườn nên phần sân vườn không được đầu tư nhiều. Các bạn có thể tham khảo phần sân vườn này nhé và đừng có nói mấy câu như sợ trộm hay sợ gì cả, vì đây chỉ là cảnh phụ để tôn nền cho ngôi nhà mà thôi.
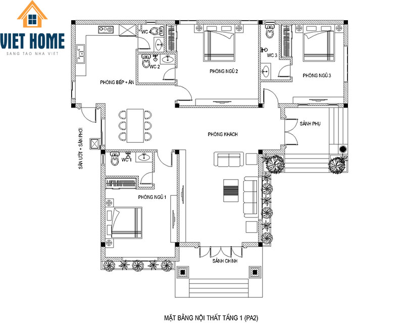
Thông tin mẫu biệt thự vườn 1 tầng, mẫu nhà vườn 1 tầng đẹp tại Thái Nguyên:
Chủ đầu tư: Anh Định
Địa chỉ: Thái Nguyên
Diện tích : 180 m2
Công năng: Phòng khách, bếp và 3 phòng ngủ vệ sinh khép kín.

Mẫu biệt thự nhà vườn 1 tầng gia đình anh Định được thi công và dần hoàn thành:

Nếu các bạn thấy thích mẫu thiết kế này hay phong cách này thì có thể liên hệ chúng tôi để được thiết kế nhé. Chúc các bạn có một ngày vui vẻ.
