Thiết kế mẫu chung cư mini 5 tầng 1 lửng 1 tum đẹp hiện đại của chủ đầu tư anh Ngọc tại Hà Nội
1. Phối cảnh 3D mặt tiền
Chủ đầu tư: Anh Ngọc
- Địa điểm xây dựng: Hà Nội
- Công năng sử dụng:
+ Tầng 1: Khu vực để xe + 1 Phòng bảo vệ + Vệ sinh
+ Tầng lửng: 2 căn hộ khép kín 2 phòng ngủ
+ Tầng 2-4 : 4 căn hộ khép kín 1 phòng ngủ
+ Tầng 5: 4 căn hộ khép kín 1 phòng ngủ
+ Tầng tum: 1 căn hộ khép kín 2 phòng ngủ + Sân thượng

Ngôi nhà 5 tầng 1 lửng 1 tum nổi bật với mặt tiền rộng rãi, mang phong cách hiện đại với những đường nét đơn giản nhưng đầy tinh tế. Mặt tiền ngôi nhà được điểm xuyết bằng các mảng màu nhẹ nhàng và vật liệu dễ bảo trì, tạo nên vẻ đẹp thanh thoát, tươi mới mà không kém phần sang trọng. Các cửa sổ lớn cùng ban công nhỏ được bố trí một cách hợp lý, không chỉ tạo sự thông thoáng mà còn tăng tính thẩm mỹ cho toàn bộ công trình. Để đảm bảo tất cả các phòng đều thoáng mát và đủ ánh sáng, kiến trúc sư Việt Home đã áp dụng nhiều giải pháp thiết kế thông minh. Các cửa sổ lớn được bố trí hợp lý ở cả hai mặt tiền và phía sau ngôi nhà, giúp tạo ra luồng không khí đối lưu, thông gió chéo, mang lại sự mát mẻ và thoáng đãng cho từng phòng. Ban công nhỏ ở một số phòng không chỉ tạo thêm không gian ngoài trời mà còn giúp tăng cường sự thông thoáng.
Bên cạnh đó ngôi nhà còn sử dụng các vật liệu xây dựng hiện đại như kính, thép và gạch block để đảm bảo độ bền và giảm chi phí bảo trì. Các tường và sàn được xây dựng chắc chắn, cách âm tốt, giúp mang lại không gian yên tĩnh, riêng tư cho người thuê. Đồng thời, áp dụng kỹ thuật xây dựng mới với tường gạch rỗng không chỉ giúp giảm nhiệt mà còn tiết kiệm năng lượng, tạo sự thoải mái tối đa cho người sử dụng.
Tòa chung cư mini có thể cao 5 tầng 1 lửng 1 tum, mỗi tầng có thể chia thành 1 - 4 căn hộ. Sử dụng nội thất thông minh, đa năng, tiết kiệm diện tích để tối ưu hóa không gian. Tuy diện tích hạn chế nhưng nhờ sự sáng tạo và khéo léo của các kiến trúc sư, những phòng cho thuê vẫn được bố trí đầy đủ các khu vực chức năng, đảm bảo đáp ứng nhu cầu sinh hoạt cơ bản cho cư dân
2. Công năng sử dụng
2.1. Tầng 1
+ Tầng 1: Khu vực để xe + 1 Phòng bảo vệ + Vệ sinh
.png?311)
2.2. Tầng lửng
+ Tầng lửng: 2 căn hộ khép kín 2 phòng ngủ
.png?161)
.png?103)
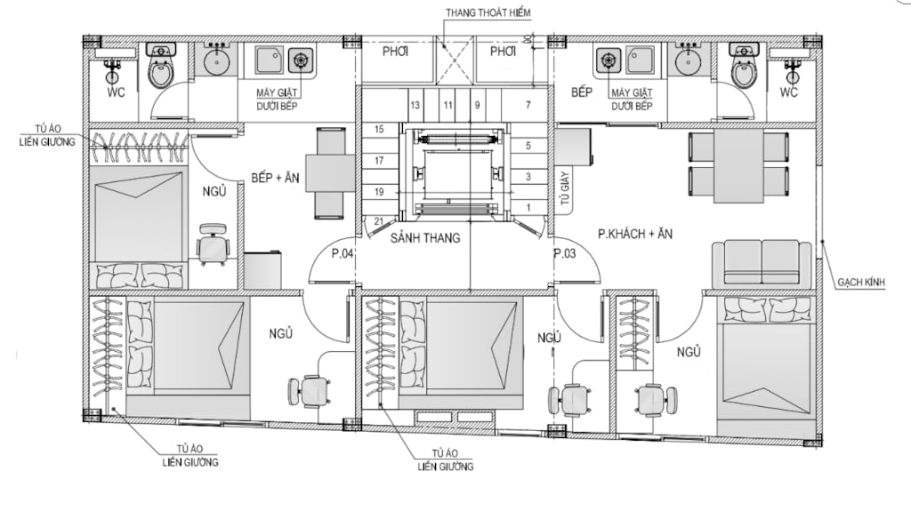
2.3. Tầng 2-4
+ Tầng 2-4 : 4 căn hộ khép kín 1 phòng ngủ

2.4. Tầng 5
+ Tầng 5: 4 căn hộ khép kín 1 phòng ngủ

2.5. Tầng tum
+ Tầng tum: 1 căn hộ khép kín 2 phòng ngủ + Sân thượng
.png?567)
