Thiết kế nhà 2 tầng mái Nhật đẹp mê ly - Chủ đầu tư: Anh Đô, Vĩnh Phúc
1. Phối cảnh 3D mặt tiền
- Chủ đầu tư: Anh Đô
- Địa điểm xây dựng: Vĩnh Phúc
- Tên công trình: Biệt thự 2 tầng mái nhật
- Công năng sử dụng:
+ Tầng 1: Phòng khách + 2 Phòng ngủ + 1 WC
+ Tầng 2: Phòng thờ + 3 Phòng ngủ + WC + Sân phơi

Căn biệt thự gây ấn tượng ngay từ cái nhìn đầu tiên với hệ mái Nhật thanh thoát, độ dốc vừa phải giúp thoát nước tốt và chống nóng hiệu quả. Tone màu chủ đạo trắng – xám kết hợp cùng các chi tiết ốp trang trí tạo nên vẻ đẹp sang trọng, nhẹ nhàng nhưng không kém phần nổi bật. Mặt tiền được thiết kế cân đối, sử dụng hệ cột trụ chắc chắn kết hợp ban công rộng, tạo điểm nhấn kiến trúc rõ ràng. Hệ cửa kính lớn giúp tối ưu ánh sáng tự nhiên, mang đến không gian sống thông thoáng và tiết kiệm năng lượng.

Khuôn viên trước nhà được tận dụng làm sân vườn, tiểu cảnh giúp tăng tính thẩm mỹ và mang lại cảm giác thư giãn. Đây là xu hướng thiết kế được nhiều gia chủ yêu thích trong những năm gần đây.
Biệt thự 2 tầng mái Nhật là lựa chọn hoàn hảo cho những gia đình mong muốn một không gian sống hiện đại, tiện nghi và gần gũi thiên nhiên. Với thiết kế linh hoạt, tính thẩm mỹ cao và độ bền vượt trội, đây chắc chắn là xu hướng nhà ở đáng đầu tư trong năm 2026.
2. Hình ảnh bố trí công năng
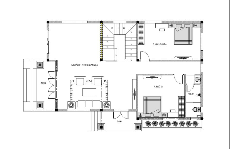
2.1. Tầng 1
Phòng khách + 2 Phòng ngủ + 1 WC
.png?547)
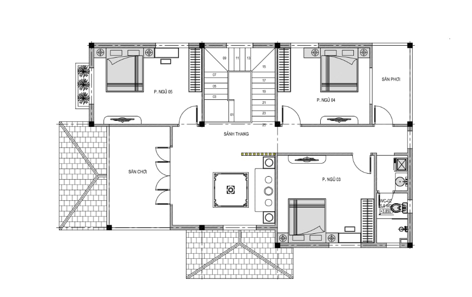
2.2. Tầng 2
Phòng thờ + 3 Phòng ngủ + WC + Sân phơi
.png?419)
3. Hình ảnh thi công thực tế
.png?852)
.png?780)
.png?686)
.png?89)
