Thiết Kế Nhà 4 Tầng 1 Tum Đẹp Tinh Tế - Tối Ưu Không Gian Sống - CĐT: Mr Thắng - Hoài Đức
1. Phối cảnh 3D mặt tiền
Chủ đầu tư: Anh Thắng
Địa điểm xây dựng: Hoài Đức, Hà Nội
Công năng sử dụng:
+ Tầng 1: Để xe + Phòng làm việc + WC
+ Tầng 2: Phòng khách + Bếp ăn + WC
+ Tầng 3,4: 2 Phòng ngủ khép kín
+ Tầng tum: Phòng thờ + Sân thượng, Sân phơi

Mặt tiền của mẫu nhà 4 tầng 1 tum gây ấn tượng mạnh với thiết kế hiện đại, tối giản nhưng đầy tinh tế, phù hợp với xu hướng kiến trúc đô thị hiện nay. Tổng thể công trình được tạo hình theo khối hộp vuông vức, cao ráo, giúp ngôi nhà trông thanh thoát và nổi bật giữa không gian xung quanh. Gam màu trắng chủ đạo kết hợp cùng các mảng tường phẳng mang lại cảm giác sạch sẽ, sang trọng và không bao giờ lỗi thời. Điểm nhấn đặc biệt nằm ở hệ ban công được bố trí đều theo từng tầng, sử dụng lan can kim loại sơn đen thanh mảnh, vừa đảm bảo an toàn vừa tạo nên sự tương phản tinh tế với màu tường sáng. Mỗi ban công đều được thiết kế như một “khu vườn nhỏ” với cây xanh bố trí hợp lý, mang thiên nhiên len lỏi vào từng không gian sống, đồng thời giúp điều hòa không khí và tăng tính thẩm mỹ.

Hệ cửa kính lớn xuyên suốt mặt tiền không chỉ giúp tận dụng tối đa ánh sáng tự nhiên mà còn tạo cảm giác mở rộng không gian, kết nối hài hòa giữa nội thất và ngoại thất. Bên cạnh đó, dải cửa sổ đứng chạy dọc một bên nhà đóng vai trò như một điểm nhấn kiến trúc độc đáo, vừa giúp lấy sáng, vừa tăng chiều sâu cho mặt đứng. Hệ thống đèn tường được bố trí hợp lý ở mỗi tầng, khi về đêm tạo nên hiệu ứng ánh sáng ấm áp, làm nổi bật các đường nét kiến trúc và mang lại vẻ đẹp lung linh, cuốn hút cho toàn bộ công trình. Tầng trệt sử dụng vật liệu ốp tối màu kết hợp cửa cổng kim loại chắc chắn, tạo cảm giác vững chãi và an toàn, đồng thời giúp cân bằng thị giác với phần thân nhà phía trên. Tổng thể mặt tiền là sự hòa quyện hoàn hảo giữa hình khối, màu sắc, vật liệu và ánh sáng, mang đến một không gian sống hiện đại, tiện nghi và đầy tính nghệ thuật.
2. Hình ảnh bố trí công năng
2.1. Tầng 1
+ Tầng 1: Để xe + Phòng làm việc + WC
.png?308)
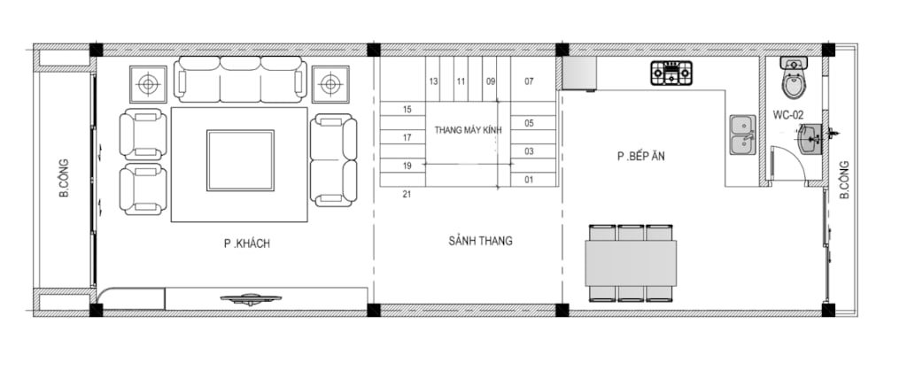
2.2. Tầng 2
+ Tầng 2: Phòng khách + Bếp ăn + WC
.png?890)
.png?308)
2.3. Tầng 3,4
+ Tầng 3,4: 2 Phòng ngủ khép kín
.png?129)
.png?308)
2.4. Tầng tum
+ Tầng tum: Phòng thờ + Sân thượng, Sân phơi
.png?530)
