Thiết kế nhà phố 2 tầng hiện đại phù hợp với gia đình trẻ - Chủ đầu tư: Anh Đỗ, Vĩnh Phúc
Một không gian sống lý tưởng không cần phải là một không gian sáng chói với những vật liệu bắt mắt, độc lạ, đắt tiền hay sử dụng những vật dụng nội thất cao sang. Một không gian sống lý tưởng là không gian phù hợp, đúng với mong muốn, nhu cầu của gia chủ; mang lại sự tiện nghi và thoải mái.
1. Phối cảnh 3D mặt tiền
- Chủ đầu tư: Anh Đỗ
- Địa điểm xây dựng: Vĩnh Phúc
- Diện tích: 5.76x16.24m
- Công năng sử dụng:
+ Tầng 1: Phòng khách + Phòng bếp ăn + 1 Phòng ngủ + WC
+ Tầng 2: Phòng thờ + Phòng SHC + 2 Phòng ngủ + Sân phơi + WC

Nhờ kiến trúc hiện đại, ngôi nhà tone màu trắng chủ đạo kết hợp cùng một số gam màu khác, mang đến sự trẻ trung, năng động. Đồng thời, việc sử dụng còn góp phần giúp các chi tiết của căn nhà trở nên rõ nét hơn.
Ngoại thất ngôi nhà đợn giản, xen giữa vào các khoảng trống tại tầng một và sân trước là các loại cây cảnh phong thủy, vừa tô điểm màu sắc mắt mắt cho ngôi nhà, vừa mang lại may mắn và tài lộc dành cho các thành viên trong gia đình.

Hầu hết các ngôi nhà kiến trúc hiện đại đều được tối giản các chi tiết trang trí hay họa tiết mặt tiền, mặc dù đơn giản nhưng vẫn tràn đầy sự tinh tế. Chính điều này đã mang lại vẻ đẹp đặc trưng cho các ngôi nhà thuộc loại hình này.
Khoảng sân trước rộng rãi, tạo điều kiện cho việc để xe cũng như di chuyển dễ dàng. Đồng thời, điều này cũng hạn chế tiếng ồn từ ngoài đường lớn ảnh hưởng tới sinh hoạt hàng ngày của các thành viên trong gia đình.
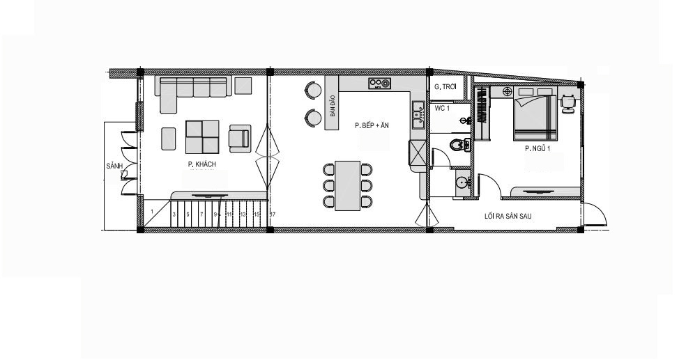
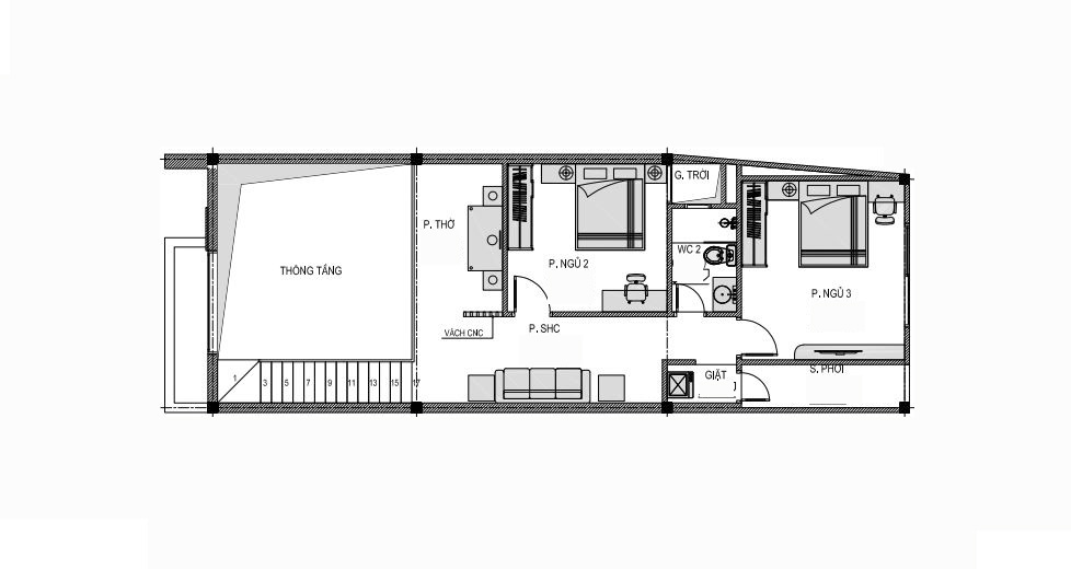
2. Công năng sử dụng
2.1. Tầng 1
+ Tầng 1: Phòng khách + Phòng bếp ăn + 1 Phòng ngủ + WC

2.2. Tầng 2
+ Tầng 2: Phòng thờ + Phòng SHC + 2 Phòng ngủ + Sân phơi + WC

Mỗi căn nhà khi xây dựng, bố cục sắp xếp các phòng, hướng phục thuộc vào tuổi tác các thành viên trong gia đình cũng như hướng đất. Việc bố trí công năng phù hợp vô cùng quan trọng khi sinh hoạt và trong phong thủy làm ăn, sức khỏe hay hạnh phúc của gia chủ. Bởi vậy, nếu bạn đang có dự định xây nhà, đừng làm theo bản vẽ có sẵn trên mạng mà hãy liên hệ với Việt Home để được tư vấn bố trí và phong thủy sao cho phù hợp nhất
