Thiết kế nhà phố tân cổ điển 4 tầng nổi bật tại Hải Dương - Chủ đầu tư anh Thắng
Những năm gần đây, xu hướng thiết kế nhà ở theo phong cách tân cổ điển, được rất nhiều gia đình ưa chuộng bởi vẻ đẹp tinh tế và sang trọng. Không chỉ sử dụng trong các biệt thự có diện tích lớn, phong cách này còn được áo dụng nhiều cho các căn nhà phố, nhà ống diện tích nhỏ.
1. Phối cảnh 3D mặt tiền
- Chủ đầu tư: Anh Thắng
- Địa điểm xây dựng: Hải Dương
- Tên công trình: Nhà phố tân cổ điển 4 tầng

Được tọa lạc trên một khu đất rộng gần 90 m2, các kiến trúc sư đã thiết kế mẫu nhà ống 4 tầng kết hợp với không gian cây xanh mát, phù hợp với công năng sử dụng của chủ đầu tư.
Toàn bộ thiết kế nhà phố 4 tầng sử dụng gam màu trắng kết hợp cùng các đường nét trang trí, màu đen tôn lên vẻ đẹp huyền bí. Màu đỏ của mái thái, rất phù hợp với những chủ đầu tư yêu thích sự nổi bật, rực rỡ.

2. Bố trí công năng các tầng
2.1. Bố trí công năng tầng 1 + 2
Tầng 1: Gara + Phòng bếp + 1 WC + Sân ướt
Tầng 2: Phòng khách + Phòng ngủ + 1 WC

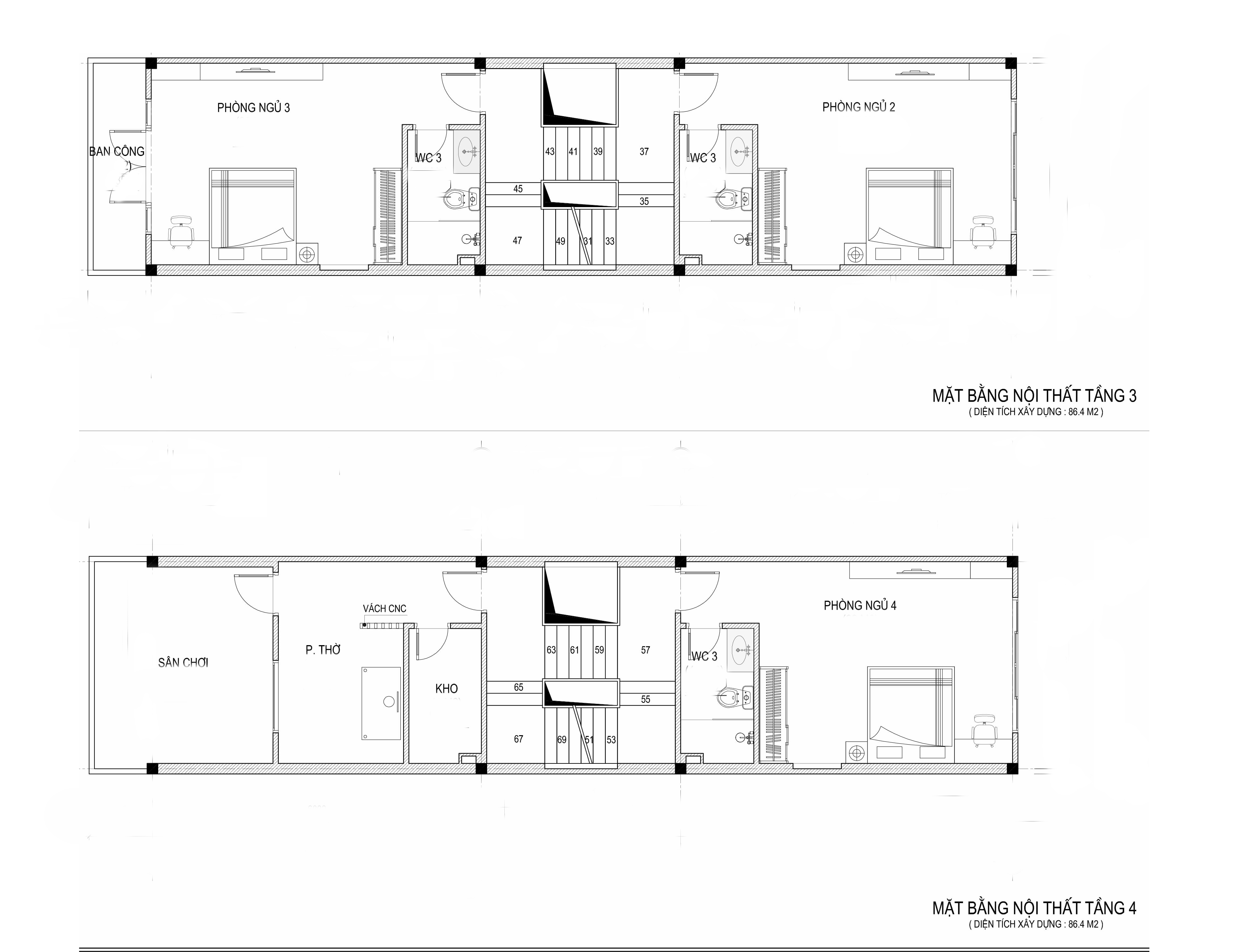
2.2. Bố trí công năng tầng 3 + 4
Tầng 3: 2 Phòng ngủ khép kín
Tầng 4: Phòng thờ + 1 Phòng ngủ khép kín + Kho + Sân chơi

2.3. Bố trí công năng tum và mái

3. Hình ảnh giám sát thi công
3.1. Giám sát sát móng




3.2. Giám sát đổ sàn tầng 2


3.3. Hình ảnh hoàn thiện phần thô


Nhiều năm kinh nghiệm trong lĩnh vực thiết kế và thi công nhà ở, Việt Home tự hào là đơn vị tạo dựng nên nhiều ngôi nhà đẹp và ấn tượng khắp 3 miền tổ quốc. Hãy liên hệ ngay với nhân viên chăm sóc khách hàng của chúng tôi để nhận tư vấn về dịch vụ và báo giá ưu đãi nhất.
