Thiết kế sang trọng, tối ưu công năng cùng mẫu biệt thự 3 tầng hiện đại của chủ đầu tư Mr. Văn tại Phú Xuyên, Hà Nội
1. Phối cảnh 3D mặt tiền
- Chủ đầu tư: Anh Văn
- Địa điểm xây dựng: Phú Xuyên, Hà Nội
- Tên công trình: Biệt thự hiện đại 3 tầng
- Công năng sử dụng:
+ Tầng 1: Phòng khách + bếp ăn + Phòng ngủ khép kín + WC
+ Tầng 2: Phòng ngủ Master+ 2 Phòng ngủ+ Phòng thay đồ+ WC
+ Tầng 3: Phòng thờ + Phòng ngủ+ Sân phơi+ Sân thượng

Mặt tiền ngôi nhà 3 tầng hiện đại này toát lên vẻ sang trọng và đẳng cấp ngay từ cái nhìn đầu tiên, nhờ sự kết hợp hài hòa giữa màu sắc, chất liệu và bố cục kiến trúc tinh tế. Tổng thể công trình sử dụng gam màu trắng kem chủ đạo, tạo cảm giác thanh lịch, sạch sẽ và tôn lên sự bề thế của hình khối kiến trúc. Những đường bo tròn mềm mại ở viền mái và các góc tường mang lại sự uyển chuyển, giúp mặt tiền không bị thô cứng mà đầy tính nghệ thuật, thể hiện sự đầu tư tinh tế của gia chủ.
Hệ cửa kính khung nhôm xám cao cấp được bố trí đồng bộ trên cả ba tầng là điểm nhấn nổi bật, góp phần tạo nên vẻ sang trọng cho căn nhà. Cửa có kích thước lớn, thiết kế mở rộng theo chiều ngang lẫn chiều cao giúp không gian bên trong luôn ngập tràn ánh sáng tự nhiên, đồng thời tôn lên nét hiện đại đặc trưng của kiến trúc đương đại. Sự phản chiếu nhẹ của kính trên nền tường trắng tạo cảm giác sang – sạch – tinh tế, nâng tầm tổng thể mặt tiền.
Ba tầng nhà được thiết kế ban công đua rộng, mỗi tầng đều có lan can sắt sơn tĩnh điện màu đen mờ tạo sự tương phản mạnh mẽ nhưng đầy tinh tế, giúp mặt tiền thêm chiều sâu và cảm giác vững chãi. Điểm nhấn không thể thiếu chính là hệ cây xanh nhiệt đới được bố trí khéo léo ở các góc ban công – vừa tạo sức sống, vừa thể hiện phong cách sống đẳng cấp, gần gũi với thiên nhiên của gia chủ.
Ban đêm, hệ đèn led âm trần và đèn hắt tường được bố trí dọc theo mặt tiền giúp ngôi nhà bừng sáng một cách sang trọng, tạo hiệu ứng ánh sáng mềm mại làm nổi bật những đường nét kiến trúc cao cấp. Tất cả hòa quyện với nhau tạo nên một mặt tiền đậm chất biệt thự hiện đại, sang trọng, cuốn hút và thể hiện rõ vị thế cũng như gu thẩm mỹ tinh tế của chủ nhân ngôi nhà.
2. Hình ảnh bố trí công năng
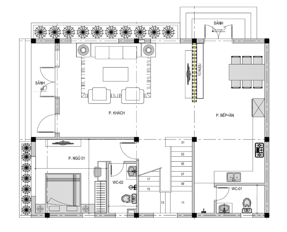
2.1. Tầng 1
+ Tầng 1: Phòng khách + bếp ăn + Phòng ngủ khép kín + WC
.png?400)
2.2. Tầng 2
+ Tầng 2: Phòng ngủ Master+ 2 Phòng ngủ+ Phòng thay đồ+ WC
.png?504)
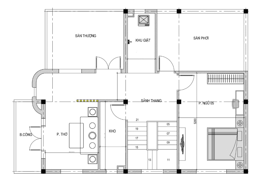
2.3. Tầng 3
+ Tầng 3: Phòng thờ + Phòng ngủ+ Sân phơi+ Sân thượng
.png?618)
3. Hình ảnh thi công
.png?587)
.png?740)
.png?624)
