Toàn cảnh mẫu nhà vườn mái nhật đẹp - Chủ đầu tư: Anh Hiệu, Phú Thọ
1. Phối cảnh 3D mặt tiền
- Chủ đầu tư: Anh Hiệu
- Địa điểm xây dựng: Phú Thọ
- Tên công trình: Biệt thự vườn mái nhật
- Công năng sử dụng: Phòng khách chung phòng thờ + Phòng bếp ăn + 2 Phòng ngủ khép kín + WC + Kho
Công trình nổi bật với hình khối kiến trúc đơn giản, cân đối, hệ mái ngói đỏ kiểu mái Nhật có độ dốc vừa phải giúp chống nóng, thoát nước tốt và tạo cảm giác bề thế, vững chãi.

Mặt tiền sử dụng tông màu sáng chủ đạo kết hợp hệ cột vuông khỏe khoắn, cửa kính khung nhôm lớn giúp lấy sáng tự nhiên tối đa, mang lại sự thông thoáng cho toàn bộ không gian bên trong. Phía trước nhà được bố trí sân rộng và mảng xanh tiểu cảnh, vừa tạo điểm nhấn thẩm mỹ vừa giúp điều hòa không khí, mang đến cảm giác thư thái cho gia chủ.
Dù chỉ gồm 1 tầng nhưng công năng được sắp xếp khoa học, đáp ứng đầy đủ nhu cầu sinh hoạt của gia đình, đặc biệt phù hợp với gia đình có người lớn tuổi hoặc trẻ nhỏ.

Mẫu nhà mái nhật hiện đại của gia đình anh Hiệu không chỉ đảm bảo tính thẩm mỹ bền vững theo thời gian mà còn có chi phí xây dựng hợp lý, dễ thi công và bảo trì, là giải pháp nhà ở được nhiều gia đình lựa chọn hiện nay.

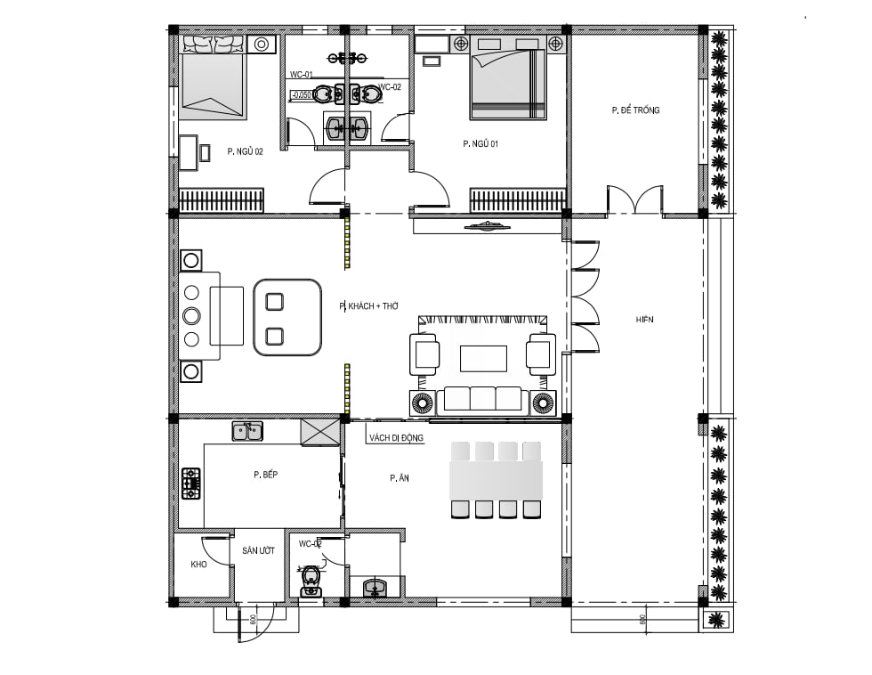
2. Hình ảnh bố trí công năng
Phòng khách chung phòng thờ + Phòng bếp ăn + 2 Phòng ngủ khép kín + WC + Kho
.png?539)
