Hoàn thiện mẫu nhà vườn mái Thái - Anh Quang, Thái Nguyên
Nhà vườn được lựa chọn xây dựng nhiều tại khu vực ngoại thành, huyện bởi diện tích đất rộng và kết hợp tuyệt đẹp cùng sân vườn thiên nhiên. Nếu bạn đang tìm kiếm nhà vườn nhỏ xinh từ 3 - 4 phòng ngủ thì chắc chắn đừng bỏ lỡ mẫu thiết kế dưới đây.
1. Phối cảnh 3D mặt tiền
- Chủ đầu tư: Anh Quang
- Địa điểm xây dựng: Thái Nguyên
- Tên công trình: Nhà vườn 2 tầng mái thái

Mẫu biệt thự mái thái 1 tầng 215 m2 thể hiện những chi tiết kiến trúc vô cùng tinh tế, không chỉ từ cách sắp xếp, bố cục mà cả vật liệu, chất lượng, chủng loại và màu sắc vật liệu đều được lựa chọn sao cho hợp lý nhất.
Gam màu chủ đạo là màu kem kết hợp màu ghi của ngói giúp tổng thể được hài hòa với không gian thiên nhiên. Hệ thống cửa sổ là cửa kính mang lại sự thoáng đãng,

Ô thông khí trên mái không chỉ đẹp về thẩm mỹ mà còn góp phần điều hòa gió, nhiệt độ của mái. Từ đó giúp căn nhà không bị nóng, bí bách từ phía trên.
Tổng thể thiết kế mang đến sự đơn giản, hài hòa và mới mẻ.
Trong quá trình triển khai thi công, anh Quang và gia đình đã quyết định chuyển sang làm mẫu nhà mái nhật. Việt Home sẽ cập nhật hình ảnh mới nhất của mẫu nhà ngay dưới đây nhé!



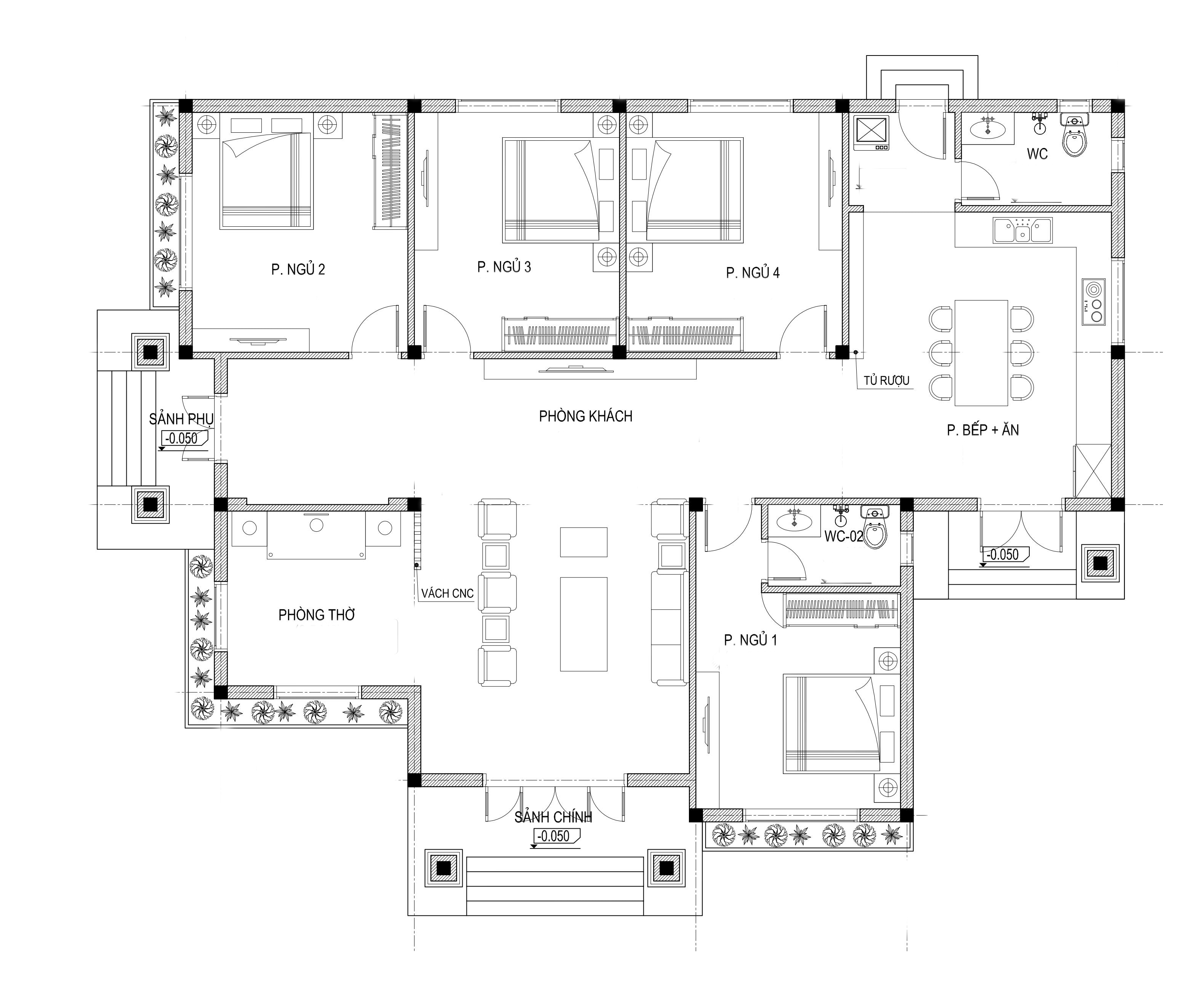
2. Bố trí công năng bên trong
Phòng khách + Phòng thờ + Phòng bếp + 1 Phòng ngủ khép kín + 3 Phòng ngủ thường + 1 WC

3. Hình ảnh hoàn thiện



Các kiến trúc sư tại VIỆT HOME có nhiều kinh nghiệm trong lĩnh vực thiết kế thi công nhà ở với kiến thức chuyên môn và gu thẩm mỹ nghệ thuật cao cam kết sẽ sáng tạo hết mình mang lại không gian sống lý tưởng nhất cho bạn và gia đình.
Hãy liên hệ với chúng tôi để được tư vấn tốt nhất:
